

















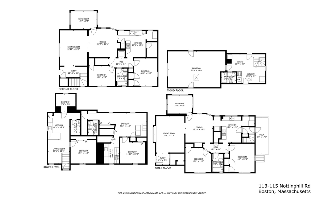
Location, location, location. Rarely available and beautifully maintained brick two-family home in Brighton, ideally situated near Boston College, the B and C Green Line . Each unit offers two generously sized bedrooms plus a sunroom, ideal for use as a third bedroom or home office. The property also features a finished attic with a full bath and a finished basement, providing excellent additional living and flexible space. Enjoy a fenced yard, two side driveways, and ample off-street parking--a true rarity in this location. Numerous updates throughout and strong rental income; the property is fully leased. An exceptional opportunity for investors or owner-occupants seeking long-term value in a prime Brighton location. Minutes to public transportation, shops, dining, Whole Foods, Cleveland Circle, Brighton Centre.
On a personal level, Celine has always been passionate about fitness, nutrition and cooking and is an active and involved member of the local Jewish community and local philanthropic organizations that serve the needy.
Let's Connect